Устройство и принцип работы
Угольный котел КВр-6.95 с ручной топкой – это теплоизолированный каркас и система трубопровода. Топливо вручную загружается в топку, вода нагревается горячими газами, образовавшимися в результате сжигания горючего, и циркулирует по трубопроводной системе. Газы проходят два раза по конвективной части, после чего выводятся через заднюю стенку. Для удобства чистки нагревающихся поверхностей, сверху у котла имеется специальный люк. Оставшийся после сгорания топлива шлак вручную переводится в золоотвод и выводится из топливной системы.
Существует две модификации котла КВр-6.95: с колосниковой или радиальной воздухораспределительной решеткой. В обоих случаях в процессе сгорания топлива на решетку начинается подача воздуха, что способствует процессу горения и полноценному сжиганию горючего. В котле с топкой с колосниковой решеткой приток воздуха обеспечивается вентилятором или тягой через отверстия особой формы. В котле с топкой с радиальной воздухораспределительной решеткой приток кислорода происходит через отверстия в трубах. В таком случае, степень подачи воздуха можно регулировать. Данный тип топки подходит для сжигания даже низкосортного топлива.
Условное обозначение
Водогрейный котел КВр-6.95 на угле, где:
- К – котел;
- В – водогрейный;
- р – ручная топка;
- 6.95 – мощность котла, МВт.
Особенности и преимущества
- Высокий показатель КПД;
- Полноценное сжигание топлива;
- Особая гидравлическая схема, предотвращающая образование накипи;
- Отсутствие водоподготовки;
- Компактность котла;
- Возможность установить оборудование, способствующее автоматизации процессов.
Размещение и установка
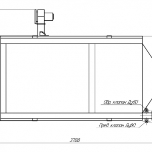
Процесс установки котла КВр-6.95 зависит от его мощности, так как они могут быть моноблочными и двухблочными. Отдельным блоком поставляется топка. Перед установкой оборудования на место его монтажа, необходимо произвести сборку всех узлов агрегата.
Угольный котел КВр-6.95 устанавливается на специально подготовленный фундамент и крепится анкерными болтами. Важно обеспечить ровную установку котла и обеспечить воздухоподачу к топке. Далее котел присоединяется к средствам водоснабжения, устанавливается вся запорная арматура и КИП, устанавливаются система отвода газов и элементы управления.
Эксплуатация и техническое обслуживание
За счет простого устройства, котел КВр-6.95 имеет долгий срок службы и простые условия эксплуатации. Котел может работать сразу после установки, после полного осмотра и тестового запуска. Производить ремонтные работы и техническое обслуживание могут только квалифицированные специалисты с разрешением на данный вид деятельности.
Комплектация
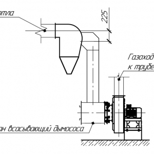
Котлы КВр-6.95 доставляются в максимально собранном заводском виде и комплектуются всем необходимым для правильной установки прибора: запорной арматурой, контрольно-измерительными приборами, частями вентиляционной системы, дымососом и золоуловителем, если есть необходимость очистки дымовых газов.

















