Устройство и принцип работы
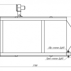
Котел КВр-7.56 имеет двухблочное горизонтальное строение, состоящее из ручной слоевой топки и котельного блока с конвективным газоходом, внутри которого циркулирует нагреваемая жидкость. Два блока котельного агрегата соединены в единую сварную конструкцию, защищенную теплоизоляцией. Топливо в котлах КВр-7.56 подается вручную, так же как и удаление прогоревших остатков вычищается из зольной камеры. Для подачи ДВО на колосниковую решетку в системе предусмотрена вместительная топочная дверца. Чтобы очистить зольник от провалившихся золы и шлака в котле предусмотрены боковые люки. При необходимости, помимо древесных отходов ручная топка котла КВр-7.56 может потреблять и другие виды твердого топлива: дрова или уголь.
Условное обозначение
Водогрейный котел КВр-7.56 на древесных отходах, где:
- К – котел;
 - В – водогрейный;
 - р – ручная топка;
 - 7.56 – мощность котла, МВт.
 
Особенности и преимущества
- КПД более 80% обеспечивается за счет большой топливной камеры, системы вентиляции, способствующих полноценному и равномерному сгоранию топлива, что помогает рационально использовать и экономить горючее;
 - Эффективное сжигание дровяного горючего позволит рационально использовать топливо, что снизит затраты на закупку;
 - Устойчивость к накипеобразованию образуется благодаря гидравлической схеме, предотвращающей застои и появление накипи, появление которых снизило бы КПД при длительном использовании котла;
 - Низкие требования к качеству воды избавляют от необходимости подготавливать воду перед использованием;
 - Небольшой размер котла позволит уместить его даже в небольших котельных;
 - Минимальные монтажные работы позволят сэкономить время и средства при установке котельного оборудования.
 
Размещение и установка
Дровяной котел КВр-7.56 устанавливается на специально подготовленный фундамент и крепится анкерными болтами. Важно обеспечить ровную установку котла и обеспечить воздухоподачу к топке. Далее котел присоединяется к средствам водоснабжения, устанавливается вся запорная арматура и КИП, устанавливаются система отвода газов и элементы управления.
Эксплуатация и техническое обслуживание
За счет простого устройства, котел КВр-7.56 имеет долгий срок службы и простые условия эксплуатации. Котел может работать сразу после установки, после полного осмотра и тестового запуска. Производить ремонтные работы и техническое обслуживание могут только квалифицированные специалисты с разрешением на данный вид деятельности.
Комплектация
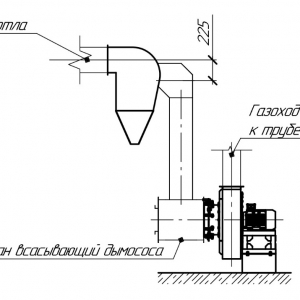
Котлы КВр-7.56 доставляются в максимально собранном заводском виде и комплектуются всем необходимым для правильной установки прибора: запорной арматурой, контрольно-измерительными приборами, частями вентиляционной системы, дымососом и золоуловителем, если есть необходимость очистки дымовых газов.














