1. Котел КВр – это водогрейный котел, предназначенный для работы в стационарных и модульных котельных. Котел имеет ручную топку и систему ручной очистки от золы. Обладает высоким показателем КПД за счет большой топливной камеры и системы воздуха подачи, которые способствуют полноценному сжиганию топлива.
Устройство и принцип работы
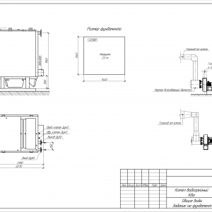
Котел КВа-0.25 состоят из топки и самой конвективной камеры. Так как топливо жидкое или газообразное, то в конвективную часть оно подается горелкой, которая смешивает горючее с воздухом и распыляет сформированным факелом. Также горелкой регулируется мощность котла. Отработанные газы выводятся через трубу.
Котел КВа-0.25 защищен от перегревов и оборудован автоматикой безопасности. На задней стенке котла имеется специальный клапан, который срабатывает при скачке давления. Котел оснащен системой регулирования, которая рассчитывает количество подаваемого топлива в зависимости от давления в котле.
Условное обозначение
Котел КВа-0.25, где:
- К – котел;
- В – водогрейный;
- а – автоматизированная горелка;
- 0.25 – теплопроизводительность.
Особенности и преимущества
- КПД более 90% обеспечивается большой топливной камерой, которая способствует полноценному сгоранию топлива и помогает рационально использовать горючее;
- Минимальные затраты на горючее способствует экономичному использованию;
- Устойчивость к образованию накипи образуется благодаря гидравлической схеме, предотвращающей застои и налипания, появление которых снизило бы КПД при длительном использовании котла;
- Совместим с множеством горелок, позволяя при выборе ориентироваться на собственные нужны;
- Автоматика безопасности сокращает вероятность поломки и увеличивает срок службы оборудования;
- Автоматизация процесса делает работу котельной автономной и упрощает труд кочегара;
- Низкие требования к качеству воды избавляют от необходимости подготавливать воду перед использованием;
- Небольшой размер котла позволит уместить его даже в небольших котельных;
- Минимальные монтажные работы сэкономят время и средства при установке котельного оборудования.
Размещение и установка
Котел КВа-0.25 должен быть установлен специалистами. Котел имеет значительный вес, поэтому устанавливается только на пол, на специально подготовленную поверхность. Для установки котла КВа-0.25 не требуется заливать фундамент: котел ставится на раму и опоры, а опоры крепятся к подготовленной поверхности болтами. На фронтовую стенку котла крепится горелка. Устройство прибора предполагает целый ряд подходящих горелочных устройств разных производителей.
Эксплуатация и техническое обслуживание
Водогрейный котел КВа-0.25 очень прост в эксплуатации. После монтажа котел подключается к водопроводной системе и начинает работу. Котел КВа-0.25 полностью автономен, не требует специальной подготовки воды. Помимо простоты использования котел КВа-0.25 имеет еще и более длительный срок службы, чем, например, простой бойлер.
Важно отметить, что производить ремонтные работы и техническое обслуживание могут только квалифицированные специалисты, имеющие специальное разрешение. При организации технического обслуживания следует учитывать требования «Правил устройства и безопасной эксплуатации паровых и водогрейных котлов».
Комплектация
Котлы КВа-0.25 доставляются в максимально собранном заводском виде и комплектуются всем необходимым для правильной установки прибора: запорной арматурой, контрольно-измерительными приборами и инструкцией по эксплуатации. Горелка в комплект не входит.









