Устройство и принцип работы
Основными частями угольного котла КВр-3 с колосниковой решеткой являются топка, система трубопровода и каркас, обшитый теплоизоляционными материалами. Топливо подается в топку, начинается процесс горения, в результате которого выделяется тепло и нагревается система трубопровода. Полученная горячая вода может использоваться как для отопления помещений, так и для обеспечения нужд горячего водоснабжения.
Газы, выделившиеся при горении, проходят дважды по конвективной части, чтобы теплоотдача была максимальной, после чего выводятся. Шлак, оставшийся в результате горения, вычищается вручную или посредством специального оборудования.
На задней стенке котла имеется специальная дверца для удобства чистки оборудования.
Колосниковая решетка выполняется из чугуна и представляет собой плитку с отверстиями, сечение которых расширяется. За счет особой формы отверстий удается избежать застревания отходов горения. Решетка легко устанавливается на котел и способствует качественному слоевому сжиганию топлива. За счет воздуха, подаваемого снизу решетки естественной тягой или вентиляторами, обеспечивается полноценное сжигание топлива.
Особенности и преимущества
- Высокий показатель КПД;
 - Полноценное сжигание топлива;
 - Особая гидравлическая схема, предотвращающая образование накипи;
 - Отсутствие водоподготовки;
 - Компактность котла;
 - Возможность установить оборудование, способствующее автоматизации процессов.
 
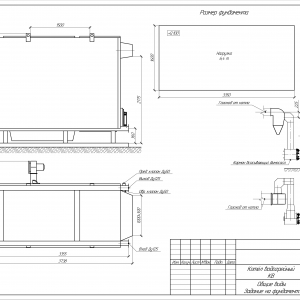
Размещение и установка
Процесс установки котла КВр-3 на угле с колосниковой решеткой зависит от его мощности, так как они могут быть моноблочными и двухблочными. Отдельным блоком поставляется топка. Перед установкой оборудования на место его монтажа, необходимо произвести сборку всех узлов агрегата.
Угольный котел КВр-3 с колосниковой решеткой устанавливается на специально подготовленный фундамент и крепится анкерными болтами. Важно обеспечить ровную установку котла и обеспечить воздухоподачу к топке. Далее котел присоединяется к средствам водоснабжения, устанавливается вся запорная арматура и КИП, устанавливаются система отвода газов и элементы управления.
Эксплуатация и техническое обслуживание
За счет простого устройства, котел КВр-3 на угле с колосниковой решеткой имеет долгий срок службы и простые условия эксплуатации. Котел может работать сразу после установки, после полного осмотра и тестового запуска. Производить ремонтные работы и техническое обслуживание могут только квалифицированные специалисты с разрешением на данный вид деятельности.














